logomob logo
amenity icon 0
Av. Avellaneda 1425, Tandil
amenity icon 1
Locales, oficinas y viviendas
amenity icon 2
Desde 70m2
amenity icon 3
Entrega a partir de Julio 2025
amenity icon 4
Desde u$s 148.000
CONTACTO

Complejo de usos mixtos

Un desarrollo de usos mixtos que combina comercios, oficinas y viviendas. Con una excelente ubicación, Complejo Avellaneda fue creado en esencia simple y racional, buscando el confort y bienestar, revalorizando el contacto con el entorno y la amplitud de sus vistas panorámicas.

Complejo de usos mixtos

Esencia racional

Locales comerciales

Tres locales comerciales con patios propios, sanitarios y gran parque central.

Flexibilidad

Dos anillos de oficinas flexibles en primer y segundo piso, con entrada independiente.

Viviendas

Tres pisos de viviendas de 2, 3 y 4 ambientes con ingreso independiente.

Espacios verdes

Patios y terrazas verdes con vistas a las sierras e iluminación natural.

Etapas

Proyecto
Fundaciones
Estructura
Mampostería
Aberturas
Terminaciones
Entrega
ver brochure
Etapas

Esencia racional

Un concurso de arquitectura dio origen a este desarrollo, que se gestó siguiendo parámetros de eficiencia energética y sustentabilidad. Se trata de un proyecto de gran envergadura que se destaca por las dimensiones de la parcela y su ubicación privilegiada.

Cuenta con un subsuelo con treinta y cuatro cocheras, además de bauleras, varios espacios verdes, bicicletero, terrazas con parrilla, SUM, piscina y paneles solares, entre otras características.

Iconicidad
Logo

INFORMACIÓN DETALLADA

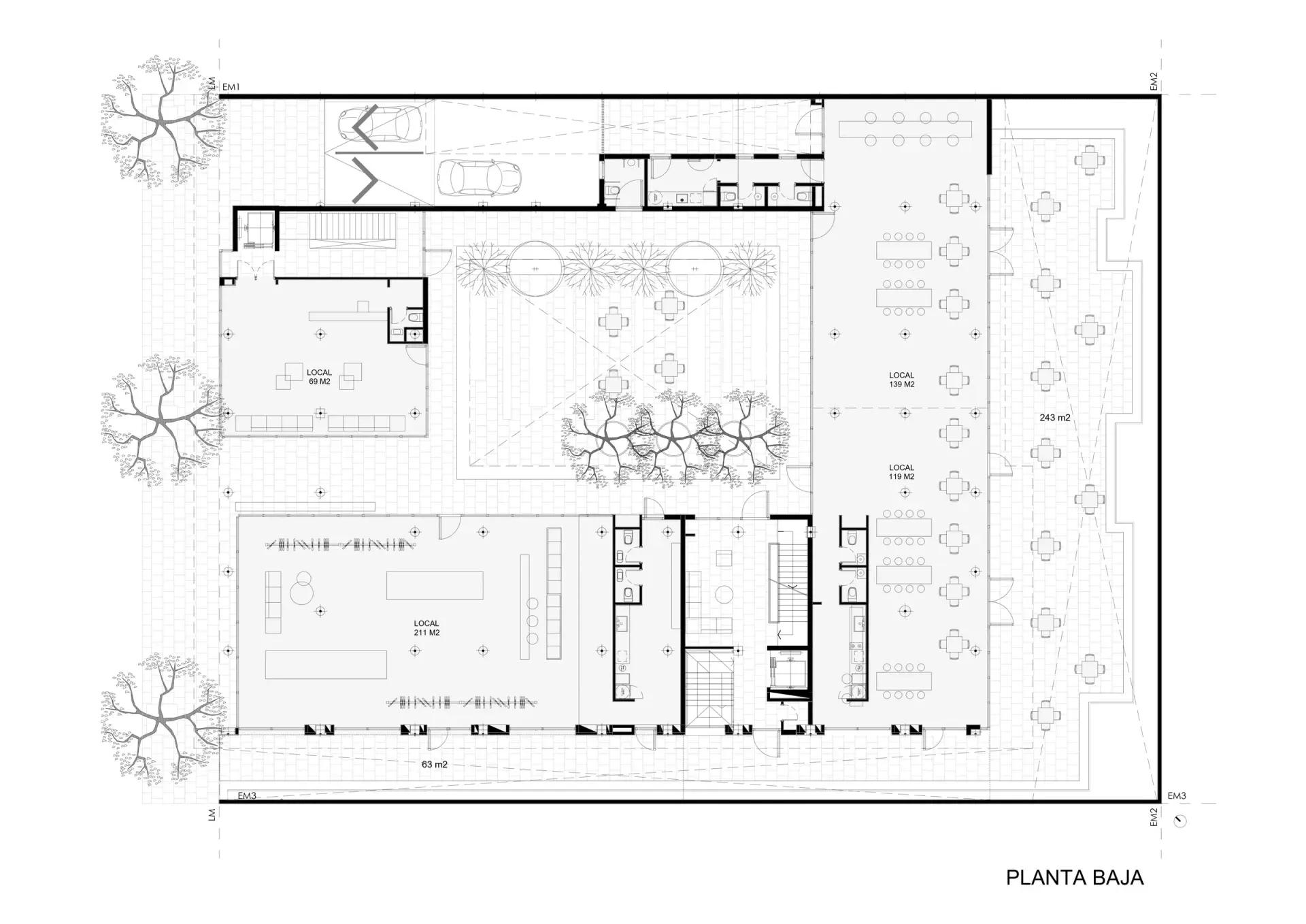
Planta baja
Ambientes
Sup total
expandMore
1
Local
64 m²
2
Local
273,2 m²
3
Local
481,05 m²
Piso 1
Ambientes
Sup total
expandMore
101
Oficina
171 m²
102
Oficina
117 m²
103
Oficina
119 m²
104
Oficina
94 m²
105
Oficina
58.5 m²
106
Oficina
98 m²
Piso 2
Ambientes
Sup total
expandMore
201
Oficina
171 m²
202
Oficina
117 m²
203
Oficina
119 m²
204
Oficina
94 m²
205
Oficina
58.5 m²
206
Oficina
98 m²
Piso 3
Ambientes
Sup total
expandMore
301
4
150,66 m²
302
3
103,81 m²
303
2
77,89 m²
304
4
146,46 m²
Piso 4
Nueva columna
Sup total
expandMore
401
4
132,65 m²
402
3
97,18 m²
403
2
77,95 m²
404
4
133,85 m²
Piso 5
Nueva columna
Sup total
expandMore
501
4
132,65 m²
502
3
97,18 m²
503
2
77,95 m²
504
4
133,85 m²

Planos

card image
card image
card image
card image
card image
card image
card image
card image
card image
card image
card image
card image
Cargando...